555 NW Mosaic AvenueWaukee, IA 50263




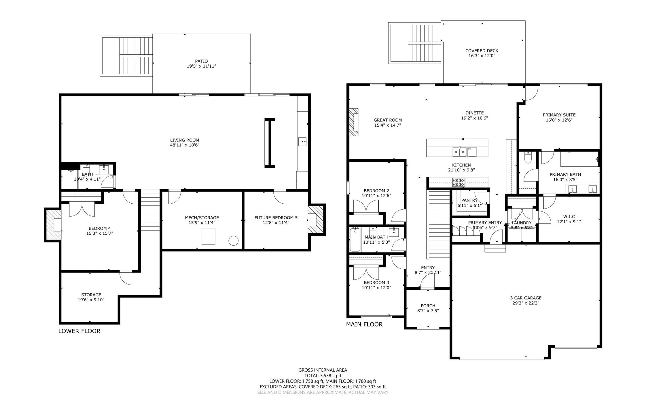
Experience Elevated Living in Waukee! This European-inspired home by Embarq Signature Homes offers 3,059 sq. ft. of luxurious living space with 4 bedrooms (optional 5th) and 3 bathrooms. Designed for modern living, it blends timeless elegance with high-end finishes in the Waukee School District, just steps from Northwest High School. Inside, 10' ceilings, oversized windows, and 8' doors create an airy, open feel. The chef’s kitchen impresses with quartz countertops, Blanco sinks, Café appliances including a 36" six-burner dual-fuel range, a custom vented hood, full-size fridge and freezer, and a spacious butler’s pantry with custom cabinetry—perfect for entertaining. Enjoy seamless indoor-outdoor living with durable LVP flooring, a walkout backyard, covered deck, and oversized patio ideal for gatherings. The finished walkout lower level features a wet bar and generous space for game nights or movie marathons. Retreat to the spa-like primary suite with a tile-surround bath and elevated finishes. Additional highlights include 2x6 construction, Kohler fixtures, modern lighting, and a prime location near schools, parks, and amenities. Live close to school and enjoy all your kids’ or grandkids’ activities at Triumph Park, Northwest Middle School, and Northwest High School. If you're dreaming of a custom home tailored to your style, needs, and vision, our New Home Concierge is here to guide you—reach out today to schedule a meeting and let’s start bringing your ideas to life.
| 16 hours ago | Price changed to $683,900 | |
| 16 hours ago | Listing updated with changes from the MLS® | |
| 3 weeks ago | Listing first seen on site |
Listing information is provided by Participants of the Des Moines Area Association of Realtors. IDX information is provided exclusively for personal, non-commercial use, and may not be used for any purpose other than to identify prospective properties consumers may be interested in purchasing. Information is deemed reliable but not guaranteed. Copyright 2026, Des Moines Area Association of Realtors.
Last checked: 2026-01-20 03:35 AM UTC

Did you know? You can invite friends and family to your search. They can join your search, rate and discuss listings with you.